平面构成的基本元素是房间,一个个独立的单元。
在Revit中可以创建“房间”构件,从而自动统计各个房间的面积和体积。
- 第一步:先设定房间的边界
- 第二步:设定面积的计算规则
- 第三步:创建房间
- 第四步:进行房间标记
- 第五步:进行面积统计,创建明细表
房间的边界组成:
- 墙(幕墙、标准墙、基于面的墙)、幕墙系统
- 屋顶(标准屋顶、内建屋顶、基于面的屋顶)
- 楼板(标准楼板、内建楼板、基于面的楼板)
- 天花板(标准天花板、内建天花板、基于面的天花板)
- 柱(建筑柱、材质为混凝土的结构柱)
- 房间分割线
房间分割线
- 它是一种特殊的模型线,可以作为房间的边界
- 例:需把一个大的办公空间分割成几个单元空间,但不能使用墙的时候,可以使用房间分割线。
- 如果在平面中不想显示房间分割线,则可以在视图的“可见性/图形替换”中设置。

房间与面积设置
- 设定房间编辑位置及计算规则;
- 体积计算可能会影响Revit性能,建议在需要打印房间明细表或其他报告体积的视图时选择计算体积,完成打印后,再取消计算体积;

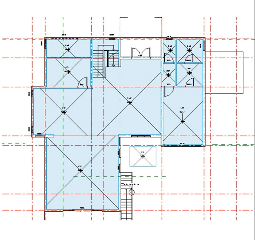
创建房间
- 选择合适的房间标记类型
- 选择“在放置时进行标记”创建房间。



-房间高度:上限+偏移
- 默认房间标记是不带引线
- 可以选择“高亮显示边界”显示图中所有可以作为房间边界的图元。
房间标记编辑
- 点击房间标记,房间“名称/面积”变为蓝色显示,单击即可编辑,同时边界呈红色
- 也可移动标记的位置。

- 移动光标在房间边界内出现X形房间预览,单击放置房间,同时自动创建房间标记。
- 继续创建其他房间,按ESC结束创建。
